Ref # 2434326

MODERN OFFICE TO LET - WNK CBD OFF CENTRE

Property Type
Office
Floor Size
467m²
Land Size
1,508m²
Lease Period
Min One Year
Deposit Required
One Month's Rental Fee

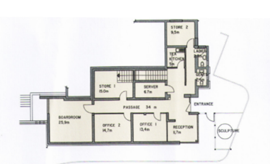
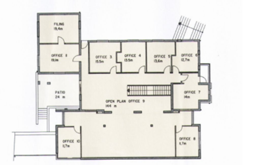
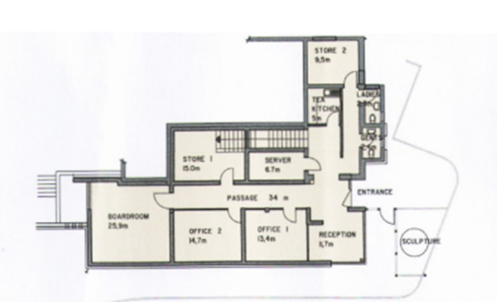
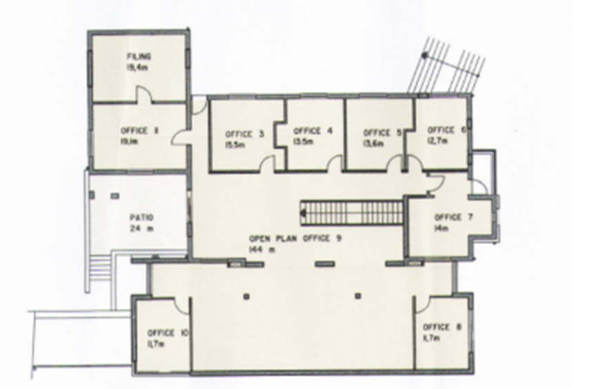
MODERN OFFICE TO LET :

SIZE : 467m2

AVAILABLE : Immediately

Reception, Strong Room/Server Room, 5 Offices Ground Floor (one office of store use) plus First Floor 1x Double Office, 6 Offices (one with a veranda) plus LARGE Ambassador’s office, Boardroom, Small Veranda, 1 x Kitchen, 3 x Ablution (one being for disabled persons), 1 x Server Room (or store) OR office

Parking 16 (4 Covered, 6 Semi Covered & 6 Not Covered)

Garden, Elec Fence, Gate Motor, Finger Print System, Alarm, 24/7 Security Guard

Christine Lourens photo
Christine Lourens
081 272 3308
Where Values still count.....
Make an enquiry
Interested in this property? Please fill in your details below, and we will contact you as soon as possible.
By clicking on "submit" you agree to our privacy policy.